D201 — 1 Bedroom, Pool View & Roof Garden
Property Description
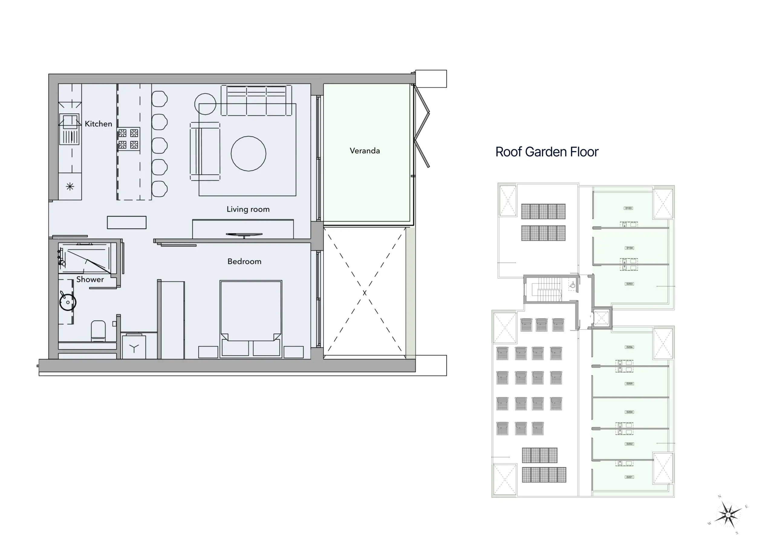
D201 is a boutique top-floor residence offering elevated privacy and a generous 27.3 m² private roof garden. The 53.1 m² interior is perfectly sized for comfort, with natural morning light adding brightness and warmth. Its 9.1 m² veranda offers an everyday outdoor extension, while the rooftop terrace transforms the home into a personal sanctuary with expansive views over landscaped gardens.
Integrated within CHIELO’s serene and wellness-led masterplan, D201 is ideal for singles, couples, or investors seeking a property that combines compact luxury with exceptional outdoor amenities
| Floor Number |
Apt No. | Beds | Baths | Indoor Area(m²) |
Covered Veranda (m²) |
Uncovered Veranda (m²) |
Roof Garden (m²) |
Common Area (m²) |
Storage Space (m²) |
Parking Spaces |
|---|---|---|---|---|---|---|---|---|---|---|
| 2 | 201 | 1 | 1 | 53,1 | 9,1 | 27,3 | 6,6 | 2,9 | 1 |
Key Features
- Gated Contemporary Community.
- Resort-style Wellness Amenities.
- Mediterranean Architectural Fusion.
- Smart Home Integration.
- Below-ground secure, private gated parking.
- Class A energy efficiency rating.
- 56 residences across four boutique buildings.
- Infinity pools and fitness facilities.
- Authentic Cypriot design elements.
- Smart Home Systems.
- Cafe & Co-working Spaces.
- Safe landscaped gardens for the community.
Location
CHIELO is nestled within the village of Pyrgos’s cultural heart. Just thirteen kilometres from Limassol’s business pulse, and only ten minutes from blue-flag beaches and the 5* St. Raphael Marina. The area is surrounded by historic architecture and Mediterranean landscapes. A strategic location without compromise. Enjoy genuine village tranquillity with seamless city access.